メインコンテンツへスキップ

物件情報

Property Information

アザーレ・クオン伊勢原

投資用・収益物件

公開日:

新築アパート

17,040万円(税込)

Spec

利回り
6.16%
建築確認番号
第KBI-YKH25-10-2603号
所在地
神奈川県伊勢原市桜台2丁目
土地面積
201.04㎡(60.81坪)
建物面積
291.12㎡(88.06坪)
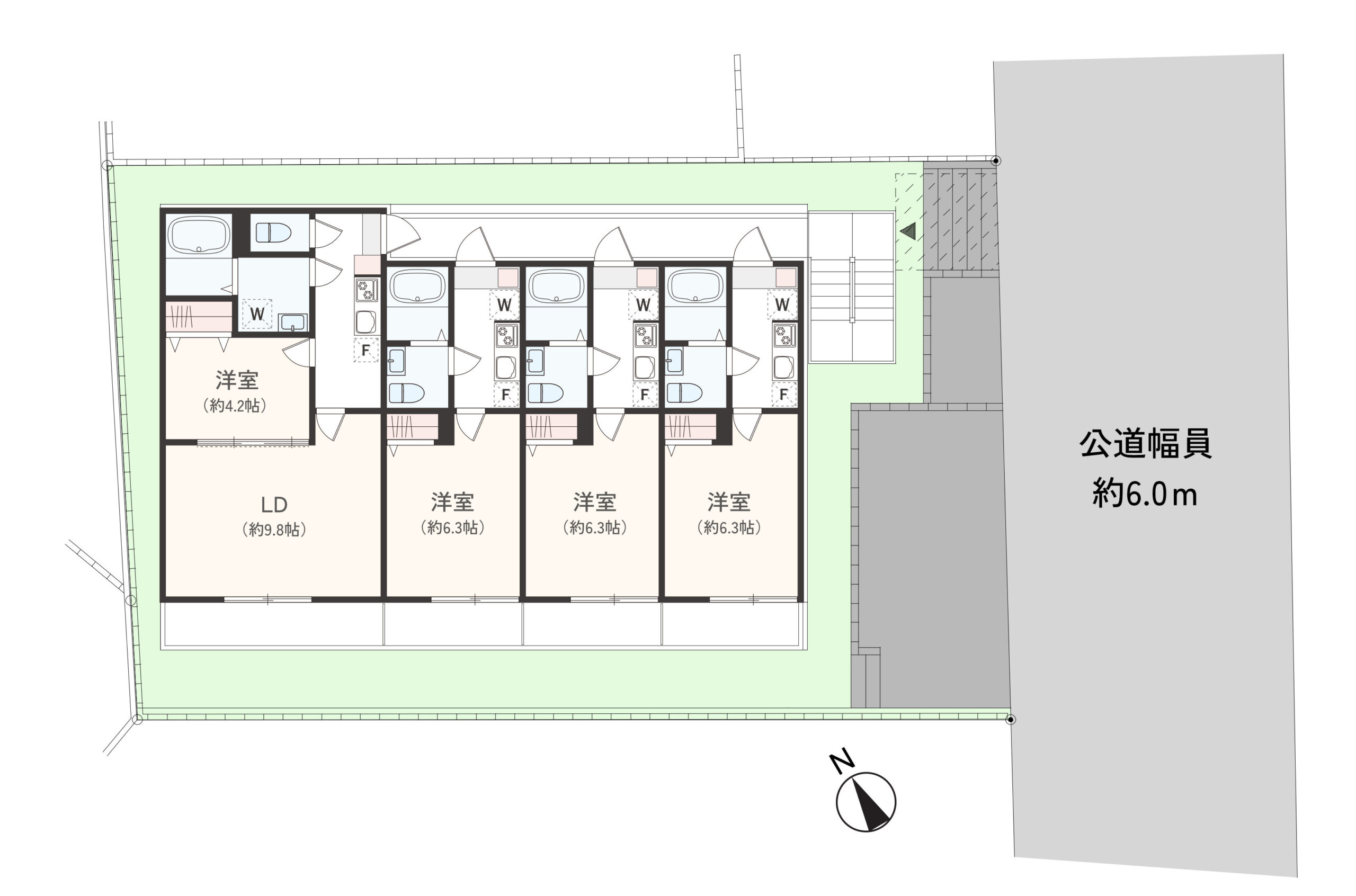
間取り
1K×9戸、1LDK×3戸

お電話でのお問い合わせ

0120-67-1910

営業時間:9:00~18:00 定休日:水

メールでのお問い合わせ

◆◇◆ 駅徒歩5分、快速停車&始発駅エリア ◆◇◆
小田急線「伊勢原」駅より徒歩5分。
都心方面へは新宿まで直通1時間圏内、通勤・通学にも便利な快速急行の停車駅です。
始発電車も多く、座って移動できる点も日常の利便性を高めます。

駅周辺には大型スーパー、飲食店、ドラッグストアなどが点在し、生活利便性も良好。
駅までは平坦な道のりで、日々の暮らしやすさが魅力です。

◆◇◆ 地域特性から安定した賃貸ニーズ ◆◇◆
伊勢原市内には、東海大学医学部付属病院や伊勢原工業団地があり、
医療・製造業など幅広い就業層が集まっています。
また、東海大学湘南キャンパス(伊勢原キャンパス含む)も近隣に位置し、学生や医療系実習生などの居住ニーズも想定されます。

こうした地域構造により、
・医療機関に勤務する職員
・工業団地で働く技術職・製造職
・大学関係者や学生 など
幅広い属性の入居ニーズが見込まれるエリアです。

◆◇◆ 多様な暮らしに応える住戸プラン ◆◇◆
本物件は1K・1LDKの混合プランを採用。
全居室は6帖以上+収納付きで、住まう方のライフスタイルに応じた選択が可能です。

さらに、
都市ガス/宅配ボックス/防犯カメラ/モニター付インターホン
などの人気設備を標準装備し、快適かつ安心な住環境を提供します。

◆◇◆ 建物性能 ◆◇◆
・【劣化対策等級3】取得予定
・【準耐火構造】採用で、火災リスクにも配慮

Overview

構造木造規模3階建て
現況建築中完成2026年3月末予定
引渡相談引渡条件完成後
地目宅地土地権力所有権
都市計画市街化区域取引態様売主
建ぺい率80%・60%容積率200%
用途地域近隣商業地域/第二種中高層住居専用地域法令制限準防火地域、宅造法、景観法
接道南東側約6.0m公道設備都市ガス・本下水・公営水道
備考・満室時想定利回りとは毎月の賃料収入×12ヶ月÷物件価格で計算しております。
・満室時想定利回りは2026年3月2日現在を元に計算しております。
・賃貸収入は予定収入であり賃料を保証するものではありません。また、公租公課及び維持管理費等の控除前のものです。
・水道加入金1,716,000円(税込)が別途買主負担となります。
・インターネット利用料金、月額11,880円(税込)/月が別途かかります。
・司法書士、家屋調査士は当社指定とさせていただきます。
・図面と現況に相違がある場合は現況を優先とさせていただきます。